XIV常磐館103【常磐町】
- 家賃 198,000 円 /月
- 管理費等 円 /月
-
敷金 630000円 礼金 198000円 償却金 - - 入居可能日即
- この物件についてお問い合わせ
| 所在地 | 香川県高松市常磐町1丁目7-2 |
|---|---|
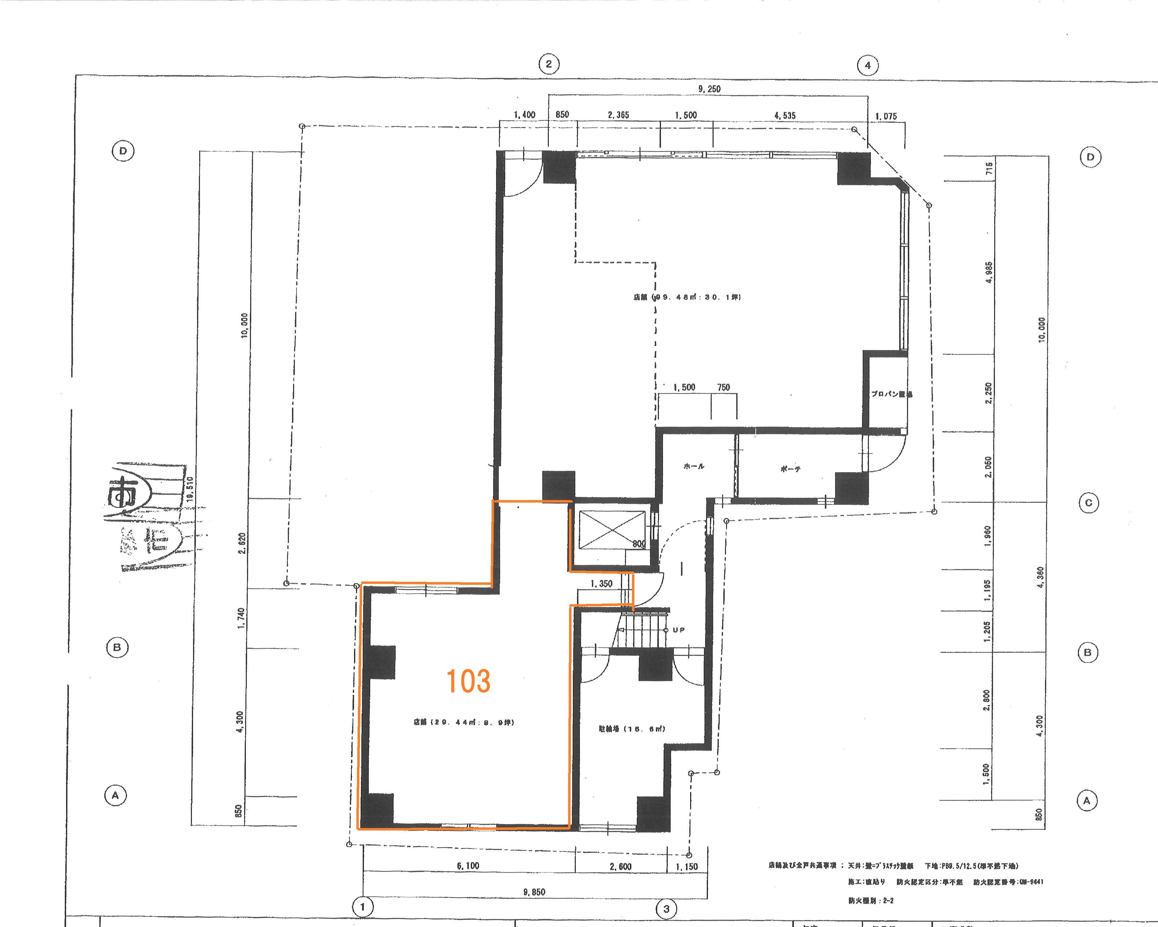
| 面積/坪数 | 49.53 m²/14.98 坪 |
| 築年数 | 19 年 |
| 取引態様 | 媒介 |
| 建物構造 | 鉄筋コンクリート造 |
| 駐車場 | 無し 駐車料金: |
| 交通 | ことでん瓦町駅瓦町 徒歩3分 JR栗林駅栗林 徒歩13分 |
POINT
常磐町商店街のマンション1F部分の店舗物件です。事務所として使用することも可能。建物近隣に相場20,000円で駐車可能です。
常磐町商店街のマンション1F部分の店舗物件です。事務所として使用することも可能。建物近隣に相場20,000円で駐車可能です。
詳細情報
- 基本情報
- 所在地・交通
- 賃料
- 建物
- 設備
- 駐車場
- その他
| 建物形態 | |
|---|---|
| オススメ業種 | 美容関係,物販関係,軽飲食,サービス業 |
| 物件名 | XIV常磐館103【常磐町】 |
| 物件の状態 | 空き |
| 引き渡し時期 | 即 |
| 契約形態・期間 | 普通契約 2年 |
| 所在地 | 香川県高松市常磐町1丁目7-2 |
|---|---|
| 交通 | ことでん瓦町駅瓦町 徒歩3分 JR栗林駅栗林 徒歩13分 |
| 賃料 | 198,000 円 /月 |
|---|---|
| 敷金 | 630000円 |
| 精算方法 | 実費 |
| 建物構造 | 鉄筋コンクリート造 |
|---|---|
| 建物階建て | 地上5階 |
| 施工年月 | 2007年12月 |
| 契約面積 | 49.53 m²/14.98 坪 |
| 水道 | 公営水道 |
|---|---|
| 下水道 | 公共下水 |
| ガス | LPG |
| エレベータ | エレベータ:無 |
| 利用時間 | 利用時間:24時間 |
| 照明設備 | 照明設備:有 |
| 内装業者指定 | 内装業者指定:無 |
| エアコン | エアコン:有り/個別 |
| トイレ | 専用トイレ |
| 給湯室 | 給湯室:無 |
| キッチン | 専用キッチン |
| ネット環境 | ネット環境:無 |
| 床仕様 | 床仕様:CFシート |
| セキュリティ | セキュリティ:無 |
| シャッター | シャッター:無 |
| 状況 | 無し |
|---|---|
| 駐車料金 |
| 取引態様 | 媒介 |
|---|---|
| 客付 | 可 |
| 備考 | ■ゴミ回収は各自業者手配■鍵交換費用別途必要■看板、サイン工事は借主負担■エアコン修理・交換は借主負担■仲介手数料:賃料1か月分■賃貸保証等:加入要■店舗総合保険:加入要■解約予告:3カ月前■防火対象物使用開始届出書については借主にて提出■建物用途変更手続きについては借主負担 |